太田市亀岡町 新築物件 群馬県太田市亀岡町|2,490万円の新築一戸建て|ララハウス太田支店
| 価格 | 2,490万円値下がり ![]() |
||||
|---|---|---|---|---|---|
| 所在地 | 群馬県太田市亀岡町
この地域周辺の物件を見る |
土地面積 | 229.85m² (公簿) (69.52坪) | 建物面積 | 107.43m2 |
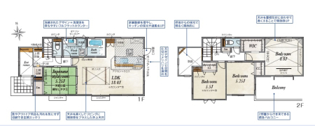
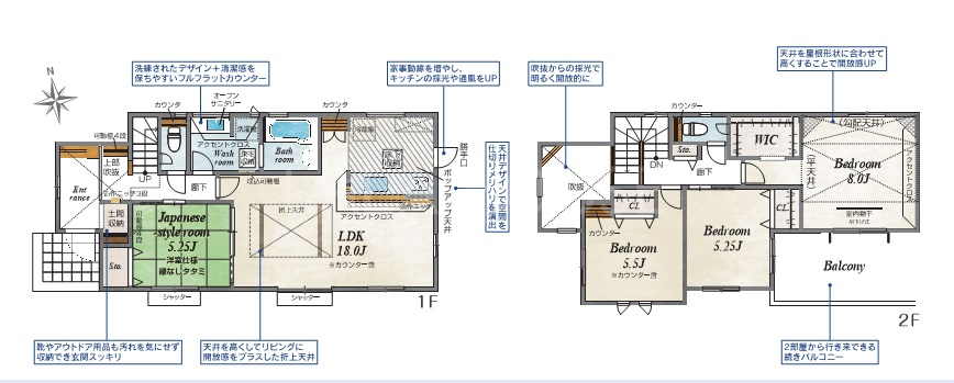
| 築年月 | 2026年3月築 | 間取り | 4LDK (LDK18/和室5.25/洋室5.25/洋室5.5/洋室8) | ||
| 交通 |
東武伊勢崎線 木崎 徒歩20分
東武伊勢崎線 太田 徒歩114分 東武桐生線 太田 徒歩114分 |
||||
| 特徴 |
|
|---|---|
| セールスコメント | 【POINT】 ◎主寝室には収納たっぷりな WIC(ウォークインクローゼット)付き ◎2面バルコニー 2部屋から行き来ができるので 家事動線が移動しやすくなります♪ ◎人造大理石カウンター システムキッチン キズや汚れに強く、 キレイな状態が長続きします☆ ■【0120-82-3388】へお気軽にお問い合わせください■ ■【ララハウス 太田】で検索♪ 最新情報を毎日更新中です! 弊社ホームページをご利用くださいませ☆☆ |
| 採光面 | 南 | 構造/階数 | 木造/地上2階建 |
|---|---|---|---|
| 建ぺい率 | 60(%) | 容積率 | 200(%) |
| 駐車場 | - | 現況/引渡し | 建築中/2026年4月中旬 |
| 土地権利 | 所有権 | 私道負担面積 | - |
| 接道状況 | 接道: 西 6m 公道 | 用途地域 |
第一種住居地域
|
| セットバック | - | 法令上の制限 | - |
| 地目 | 宅地 | 地勢 | |
| 建築確認番号 | 第25UDI1W建08329号 | 都市計画 | 市街化区域 |
| 備考 | - | ||
| リノベーション箇所 | リノベーション時期 | ||
| リノベーション補足 | |||
| 取引態様 | 媒介 | ||
| 情報更新日 | 2026年03月30日 | 次回更新日 | 2026年04月13日 |
| 小学校区 | 太田市立尾島小学校 (群馬県太田市) この学区の他の物件を見る |
中学校区 | 尾島中学校 (群馬県太田市) この学区の他の物件を見る |
|---|
| 価格 | 万円 | ||
|---|---|---|---|
| 年利率 | % |
||
| ボーナス払い | 返済年数 | ||
| 頭金 | 直接入力する | 万円 | |

毎月のご返済額 |
ボーナス(×年2回) |
物件価格2,490万円 |
《尾島小・尾島中エリア》徒歩6分エリアでお子様の通学負担が少なく、安心して通学できますね☆全居室ペアガラスのため、1年中快適な環境の中でお過ごしいただけます♪