足利市五十部町 中古戸建 栃木県足利市五十部町|699万円の中古一戸建て|ララハウス太田支店

0120-82-3388
メール

中古一戸建て

足利市五十部町 中古戸建

お気に入り
価格 699万円 ローンシミュレーション
所在地 栃木県足利市五十部町
この地域周辺の物件を見る
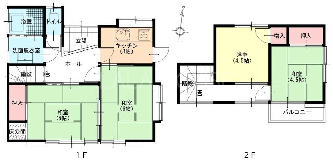
土地面積 126.27m² (38.19坪) 建物面積 65.41m2
築年月 1986年1月築 間取り 4K (K3/和室6/和室6/和室4.5/洋室4.5)
交通
JR両毛線 山前 徒歩29分
JR両毛線 足利 徒歩55分
JR両毛線 小俣 徒歩91分
ここがおすすめ

《足利市五十部町の中古物件》4Kコンパクトな間取り、和室3部屋、洋室1部屋と畳のある部屋が多く、心落ち着く和風物件です◎ご夫婦のみでも十分な間取りです☆お気軽にお問い合わせください♪

お問い合わせ、資料請求、見学のお申し込みはこちらから

電話をかける(携帯・PHS可)
0120-82-3388
「ホームページを見た」とお伝え下さい。

お問い合わせ番号をお伝えください
RHS-lala-000368

内見予約
お問合せ

セールスポイント

特徴
  • コンロ三口
  • 2階建て
  • 本下水
  • リノベーション向き・済み
  • 個別プロパン
  • 閑静な住宅街
  • 小学校徒歩10分以内
  • フローリング
  • バス・トイレ別
  • コンロ三口
  • バルコニー
セールスコメント 【おすすめポイント】

◎水回り動線らくらく
お風呂・洗面台・トイレまとまっています!

◎小学校まで約400m
車通りも落ち着いている
閑静な住宅地

■【0120-82-3388】へお気軽にお問い合わせください■
■【ララハウス 太田】で検索♪
  最新情報を毎日更新中です!
  弊社ホームページをご利用くださいませ☆☆

物件概要

採光面 構造/階数 木造/地上2階建
建ぺい率 60(%) 容積率 200(%)
駐車場 - 現況/引渡し 空家/相談
土地権利 所有権 私道負担面積 なし

接道状況 接道: 北 6m 公道 用途地域
第一種住居地域
セットバック なし 法令上の制限 -
地目 宅地 地勢
建築確認番号 都市計画 市街化区域
備考

その他制限:建築基準法22帖区域、日影規制(二種、5h-3h/4m)、道路斜線制限、隣地斜線制限、景観法、足利市景観条例、景観計画区域、都市再生特別措置法、立地適正化計画(居住誘導区域内、都市機能誘導区域外)、宅地造成及び特定盛土等規制法。

リノベーション箇所 リノベーション時期
リノベーション補足
取引態様 媒介
情報更新日 2026年04月17日 次回更新日 2026年05月01日
※各種情報と差異がある場合は現況優先となります

学区情報

小学校区 足利市立三重小学校
(栃木県足利市)
この学区の他の物件を見る
中学校区 足利市立西中学校
(足利市)
この学区の他の物件を見る
※物件情報の学区情報について
当サイト物件情報に記載されております通学区域(学区)情報は、国土数値情報ダウンロードサービスが提供する小学校区データ【2021年度】及び中学校区データ【2021年度】を元に加工したものですので、記載情報が現在の学区域と異なる場合がございます。
国土数値情報ダウンロードサービスのWEBサイト上で記述通り、データは必ずしも正確とは言えません。また、通学区域(学区)は毎年見直しの対象となりますので、そちらを踏まえ学区情報は参考としてご活用下さい。

お問い合わせ、資料請求、見学のお申し込みはこちらから

電話をかける(携帯・PHS可)
0120-82-3388
「ホームページを見た」とお伝え下さい。

お問い合わせ番号をお伝えください
RHS-lala-000368

内見予約
お問合せ

この物件でローンシミュレーションする

価格 万円
年利率
ボーナス払い 返済年数
頭金 直接入力する 万円

毎月のご返済額

ボーナス(×年2回)

物件価格

699万円
※返済金額はあくまでも目安です。
  • こちらの物件を見たお客様はこんな物件もチェックしています。
  • お気に入り物件

同じ価格帯の物件はこちら

広さの近い物件はこちら

同じ学区の物件はこちら

電話をかける(携帯・PHS可)
0120-82-3388
「ホームページを見た」とお伝え下さい。

お問い合わせ番号をお伝えください
RHS-lala-000368

内見予約
お問合せ

お問い合わせ

  1. 1
    内容入力
  2. 2
    内容確認
  3. 3
    完了
お問合せ内容必須
【備考欄】
詳細な見学ご希望時間、ご質問、ご希望条件などがございましたらお聞かせ下さい。
(2000文字以内)
お名前必須
メールアドレス必須
※ご記入いただいたメールアドレス宛てに、お問合せ内容の確認メールをお送りいたします。
※Yahoo!メールなどのフリーメールをご利用の場合、迷惑メールフォルダに入る場合があります。
 迷惑メールのフォルダ・設定等をご確認下さい。
電話番号必須
FAX(任意)
※ご入力いただいたお客さまの個人情報は、「個人情報の取扱いについて」に基づき適正に取り扱います。必ずお読みになり、同意の上お問い合わせください。

お気軽にお問い合わせください

0120-82-3388
物件番号 RHS-lala-000368
※「ホームページを見た」
とお伝え下さい。

お役立ち機能

この物件を
携帯で確認!

page_top

LALA HOUSE GROUP OUR BRAND

  • ララハウス株式会社
  • ル・タン建築設計事務所
  • モダン株式会社
  • ロクシーデザイン
  • HACOワーキングスペース
  • ツリー高崎
  • ララパークSUEHIRO
会社概要