みどり市大間々町大間々 新築住宅 群馬県みどり市大間々町大間々|3,190万円の新築一戸建て|ララハウス太田支店
| 価格 | 3,190万円 ![]() |
||||
|---|---|---|---|---|---|
| 所在地 | 群馬県みどり市大間々町大間々
この地域周辺の物件を見る |
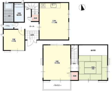
土地面積 | 286.66m² (公簿) (86.71坪) | 建物面積 | 102.42m2 |
| 築年月 | 2026年7月築 | 間取り | 3LDK (-) | ||
| 交通 |
上毛電気鉄道 桐生球場前 徒歩13分
|
||||
| 特徴 |
|
|---|---|
| セールスコメント | 【おすすめポイント】 ◇全居室フローリング仕様で日々のお掃除もしやすい間取り! ◇南向きで日当たり良好! ◇固定階段ロフトの為 上り下りもしやすく 安定してお使いいただけます◎ ■【0120-82-3388】へお気軽にお問い合わせください■ ■【ララハウス 太田】で検索♪ 最新情報を毎日更新中です! 弊社ホームページをご利用くださいませ☆☆ |
| 採光面 | - | 構造/階数 | 木造/地上1階建 |
|---|---|---|---|
| 建ぺい率 | 70(%) | 容積率 | 400(%) |
| 駐車場 | - | 現況/引渡し | 建築中/相談 |
| 土地権利 | 所有権 | 私道負担面積 | - |
| 接道状況 | 接道: 東 4.9m 公道 接道: 南 4m 公道 |
用途地域 |
指定なし
|
| セットバック | - | 法令上の制限 | - |
| 地目 | 宅地 | 地勢 | |
| 建築確認番号 | 都市計画 | 非線引 | |
| 備考 | - | ||
| リノベーション箇所 | リノベーション時期 | ||
| リノベーション補足 | |||
| 取引態様 | 媒介 | ||
| 情報更新日 | 2026年04月21日 | 次回更新日 | 2026年05月05日 |
| 小学校区 | みどり市立大間々東小学校 (群馬県みどり市) この学区の他の物件を見る |
中学校区 | 大間々東中学校 (群馬県みどり市) この学区の他の物件を見る |
|---|
| 価格 | 万円 | ||
|---|---|---|---|
| 年利率 | % |
||
| ボーナス払い | 返済年数 | ||
| 頭金 | 直接入力する | 万円 | |

毎月のご返済額 |
ボーナス(×年2回) |
物件価格3,190万円 |
【全2棟×平屋建て住宅◎】2棟ともに平屋建て&並列3台の駐車スペースのある分譲住宅になります!小中学校まで1km圏内で日々の通学も安心の立地◎ロフト付きで収納スペースも充実◎