太田市鶴生田町 新築物件 群馬県太田市鶴生田町|1,890万円の新築一戸建て|ララハウス太田支店
| 価格 | 1,890万円値下がり ![]() |
||||
|---|---|---|---|---|---|
| 所在地 | 群馬県太田市鶴生田町
この地域周辺の物件を見る |
土地面積 | 182.07m² (公簿) (55.07坪) | 建物面積 | 108.89m2 |
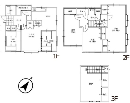
| 築年月 | 2025年6月築 | 間取り | 4SLDK (LDK17/洋室6/和室4.5/洋室8/洋室5.2) | ||
| 交通 |
東武桐生線 三枚橋 徒歩17分
|
||||
| 特徴 |
|
|---|---|
| セールスコメント | 【おすすめポイント♪】 ☆長期優良認定住宅☆ 〇収納充実の間取り♪ ・2階洋室にはWIC付♪ ・2部屋についています♪ 〇小学校まで1km圏内のためお子様の登下校安心の立地♪ 〇「ただいま手洗い」がスムーズな間取り◎ 〇敷地内お車4台並列駐車可能! ■【0120-82-3388】へお気軽にお問い合わせください■ ■【ララハウス 太田】で検索♪ 最新情報を毎日更新中です! 弊社ホームページをご利用くださいませ☆☆ |
| 採光面 | - | 構造/階数 | 木造/地上2階建 |
|---|---|---|---|
| 建ぺい率 | 60(%) | 容積率 | 200(%) |
| 駐車場 | - | 現況/引渡し | 建築中/2025年7月上旬 |
| 土地権利 | 所有権 | 私道負担面積 | - |
| 接道状況 | 接道: 南 7m 公道 接道: 西 4m 公道 |
用途地域 |
第二種中高層住居専用地域
|
| セットバック | - | 法令上の制限 | - |
| 地目 | 宅地 | 地勢 | |
| 建築確認番号 | 都市計画 | 市街化区域 | |
| 備考 | - | ||
| リノベーション箇所 | リノベーション時期 | ||
| リノベーション補足 | |||
| 取引態様 | 仲介 | ||
| 情報更新日 | 2026年01月26日 | 次回更新日 | 2026年02月09日 |
| 小学校区 | 太田市立鳥之郷小学校 (群馬県太田市) この学区の他の物件を見る |
中学校区 | 西中学校 (群馬県太田市) この学区の他の物件を見る |
|---|
| 価格 | 万円 | ||
|---|---|---|---|
| 年利率 | % |
||
| ボーナス払い | 返済年数 | ||
| 頭金 | 直接入力する | 万円 | |

毎月のご返済額 |
ボーナス(×年2回) |
物件価格1,890万円 |
【南西角地×並列4台の駐車スペース】長期優良認定住宅☆小学校まで1km圏内のためお子様の日々の登下校も安心の立地♪各所収納スペース充実の間取り◎☆南向きのため日当たり良好なバルコニーも♪