太田市鳥山上町 中古物件 群馬県太田市鳥山上町|1,298万円の中古一戸建て|ララハウス太田支店
| 価格 | 1,298万円値下がり ![]() |
||||
|---|---|---|---|---|---|
| 所在地 | 群馬県太田市鳥山上町
この地域周辺の物件を見る |
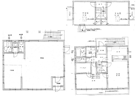
土地面積 | 280.58m² (公簿) (84.87坪) | 建物面積 | 174.67m2 |
| 築年月 | 1993年7月築 | 間取り | 5SLDK (-) | ||
| 交通 |
東武桐生線 三枚橋 徒歩16分
東武桐生線 治良門橋 徒歩26分 東武伊勢崎線 太田 徒歩64分 |
||||
| 特徴 |
|
|---|---|
| セールスコメント | 【POINT】 ◇1F吹抜けリビング 開放感を感じられる空間 ◇2F小屋裏収納と大きな踊り場 ◇バス1坪以上・追焚機能・浴室暖房あり ◇ドラッグストア徒歩5分圏内 スーパー・コンビニまで車で10分圏内 ■【0120-82-3388】へお気軽にお問い合わせください■ ■【ララハウス 太田】で検索♪ 最新情報を毎日更新中です! 弊社ホームページをご利用くださいませ☆☆ |
| 採光面 | 南 | 構造/階数 | 軽量鉄骨造/地上2階建 |
|---|---|---|---|
| 建ぺい率 | 60(%) | 容積率 | 200(%) |
| 駐車場 | - | 現況/引渡し | 空家/相談 |
| 土地権利 | 所有権 | 私道負担面積 | - |
| 接道状況 | 接道: 北 6m 公道 接道: 東 5m 公道 |
用途地域 |
第一種住居地域
|
| セットバック | - | 法令上の制限 | - |
| 地目 | 宅地 | 地勢 | |
| 建築確認番号 | 都市計画 | 市街化区域 | |
| 備考 | ※不具合部分:雨どいが一部改修工事要(現況有姿売買)。 ※引越し時にクリーニング&住宅設備磨きを売主にて実施予定。 ※多少の家具、家電、照明、エアコン、カーテン、ピアノ等設置。
|
||
| リノベーション箇所 | リノベーション時期 | ||
| リノベーション補足 | |||
| 取引態様 | 媒介 | ||
| 情報更新日 | 2026年04月27日 | 次回更新日 | 2026年05月11日 |
| 小学校区 | 太田市立鳥之郷小学校 (群馬県太田市) この学区の他の物件を見る |
中学校区 | 西中学校 (群馬県太田市) この学区の他の物件を見る |
|---|
| 価格 | 万円 | ||
|---|---|---|---|
| 年利率 | % |
||
| ボーナス払い | 返済年数 | ||
| 頭金 | 直接入力する | 万円 | |

毎月のご返済額 |
ボーナス(×年2回) |
物件価格1,298万円 |
《元モデルハウス・有名ハウスメーカー施工》太田市鳥山上町の中古物件☆閑静な住宅街にあり、ゆっくりとご自宅でお過ごしいただけます♪
お気軽にお問い合わせください♪