太田市植木野町 デザイナーズ新築住宅 群馬県太田市植木野町|2,780万円の新築一戸建て|ララハウス太田支店
| 価格 | 2,780万円値下がり ![]() |
||||
|---|---|---|---|---|---|
| 所在地 | 群馬県太田市植木野町
この地域周辺の物件を見る |
土地面積 | 238.78m² (公簿) (72.23坪) | 建物面積 | 101.84m2 |
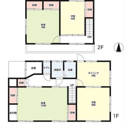
| 築年月 | 2024年8月築 | 間取り | 3SLDK (LDK22.2/洋室6/洋室6.6/S2/洋室6) | ||
| 交通 |
東武伊勢崎線 野州山辺 徒歩27分
|
||||
| 特徴 |
|
|---|---|
| セールスコメント | 《おすすめポイント》 【立地】国道50号すぐ!スーパー・SCまで徒歩5分の希少エリア 【空間】22帖超の開放的LDKに陽光たっぷり 居心地満点の隠れ家「ヌック」と個室の書斎が 在宅ワークも家族時間も豊かに♪ 9帖の南向きバルコニーはBBQやプールも楽しめる”もうひとつのリビング”◎ 【性能】マシュマロ断熱(吹付)×ダイライト工法 夏涼しく冬暖か、光熱費もぐっと抑えられます 10年シロアリ保証・地盤保証付きで長く安心☆ 【ダイライト工法】 耐力面材の為、全体に力が分散され、地震に強く燃えにくい特徴があります 【吹付断熱工法】 断熱素材を屋根や壁へ吹き付けることで住宅の断熱性を向上させます |
| 採光面 | - | 構造/階数 | 木造/地上2階建 |
|---|---|---|---|
| 建ぺい率 | 60(%) | 容積率 | 200(%) |
| 駐車場 | - | 現況/引渡し | 完成/即時 |
| 土地権利 | - | 私道負担面積 | - |
| 接道状況 | 接道: 南 4m 公道 | 用途地域 |
第一種住居地域
|
| セットバック | - | 法令上の制限 | 建築基準法第22条・23条 浄化槽処理促進区域 |
| 地目 | 宅地 | 地勢 | |
| 建築確認番号 | 都市計画 | 市街化区域 | |
| 備考 |
【仕様・特徴】
地盤保証(エムピー20)・しろあり1000(10年)保証付き・照明器具・納戸・Low-e複層ガラス・ガラストップコンロ・食器洗い乾燥機・ダイライト工法・浴室暖房換気乾燥機・高断熱浴槽・床下収納庫・テレビドアホン・玄関システムキー・屋根ガルバリウム鋼板葺・吹付断熱工法・フローリング抗菌・全室LED照明・24時間換気・火災報知器・EV(電気自動車)・キッチン一部モザイクタイル・散水栓・外構工事
※フラット35S対応(Aタイプ)
※新築住宅瑕疵担保責任保険(JIO)
(保険期間10年・金額2000万)加入予定
※カーテンレール・エアコン別途
|
||
| リノベーション箇所 | リノベーション時期 | ||
| リノベーション補足 | |||
| 取引態様 | 売主 | ||
| 情報更新日 | 2026年05月01日 | 次回更新日 | 2026年05月15日 |
| 小学校区 | 太田市立駒形小学校 (群馬県太田市) この学区の他の物件を見る |
中学校区 | 城東中学校 (群馬県太田市) この学区の他の物件を見る |
|---|
| 価格 | 万円 | ||
|---|---|---|---|
| 年利率 | % |
||
| ボーナス払い | 返済年数 | ||
| 頭金 | 直接入力する | 万円 | |

毎月のご返済額 |
ボーナス(×年2回) |
物件価格2,780万円 |






《隠れ家ヌック×書斎×9帖バルコニー》こだわりのデザイナーズ住宅◇スーパー・ショッピングセンターまで徒歩5分!国道50号沿いの抜群の利便性に、72坪(登記)の広大な土地が広がります!「マシュマロ断熱」吹付断熱×ダイライト工法で夏涼しく冬暖か、光熱費も大幅ダウン!