太田市上小林町 中古住宅 群馬県太田市上小林町|1,299万円の中古一戸建て|ララハウス太田支店
| 価格 | 1,299万円 ![]() |
||||
|---|---|---|---|---|---|
| 所在地 | 群馬県太田市上小林町
この地域周辺の物件を見る |
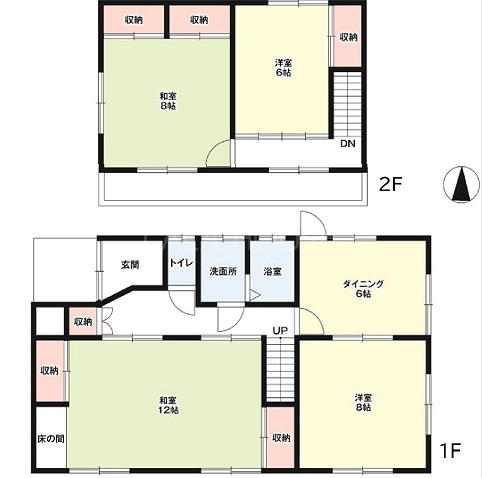
土地面積 | 310.01m² (公簿) (93.77坪) | 建物面積 | 99.36m2 |
| 築年月 | 1989年10月築 | 間取り | 4DK (-) | ||
| 交通 |
東武伊勢崎線 太田 徒歩52分
|
||||
| 特徴 |
|
|---|---|
| セールスコメント | 【おすすめコメント】 ◇駐車スペース2台◎ ◇国道50号線まで約2キロと近く 多方面へのアクセス良好! ◇和洋室それぞれあるため 用途に合わせてお使いいただけます! ■【0120-82-3388】へお気軽にお問い合わせください■ ■【ララハウス 太田】で検索♪ 最新情報を毎日更新中です! 弊社ホームページをご利用くださいませ☆☆ |
| 採光面 | - | 構造/階数 | 木造/地上2階建 |
|---|---|---|---|
| 建ぺい率 | 70(%) | 容積率 | 200(%) |
| 駐車場 | - | 現況/引渡し | 空家/相談 |
| 土地権利 | 所有権 | 私道負担面積 | - |
| 接道状況 | 接道: 北西 4m 公道 | 用途地域 |
指定なし
|
| セットバック | - | 法令上の制限 | - |
| 地目 | 宅地 | 地勢 | |
| 建築確認番号 | 都市計画 | 市街化調整区域 | |
| 備考 | - | ||
| リノベーション箇所 | リノベーション時期 | ||
| リノベーション補足 | |||
| 取引態様 | 媒介 | ||
| 情報更新日 | 2026年04月03日 | 次回更新日 | 2026年04月17日 |
| 小学校区 | 太田市立駒形小学校 (群馬県太田市) この学区の他の物件を見る |
中学校区 | 城東中学校 (群馬県太田市) この学区の他の物件を見る |
|---|
| 価格 | 万円 | ||
|---|---|---|---|
| 年利率 | % |
||
| ボーナス払い | 返済年数 | ||
| 頭金 | 直接入力する | 万円 | |

毎月のご返済額 |
ボーナス(×年2回) |
物件価格1,299万円 |
【敷地面積93坪◎広々敷地!】車で5分圏内に生活施設が揃います♪国道407号線へのアクセスも良くお出かけ等にも便利な立地!プライベート空間を守ることが出来る間取り◎お気軽にお問い合わせください◎