【アイ工務店との豪華企画!】大泉町寄木戸 新築住宅(土地代除く) 群馬県邑楽郡大泉町寄木戸|3,000万円の新築一戸建て|ララハウス太田支店
| 価格 | 3,000万円 ![]() |
||||
|---|---|---|---|---|---|
| 所在地 | 群馬県邑楽郡大泉町寄木戸
この地域周辺の物件を見る |
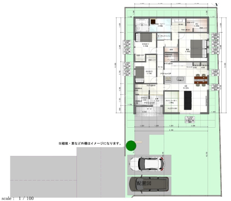
土地面積 | 254.57m² (公簿) (77坪) | 建物面積 | 102.58m2 |
| 築年月 | 2026年12月築 | 間取り | 3LDK (LDK19.5/洋室6/洋室5.5/洋室5.5) | ||
| 交通 |
東武小泉線 西小泉 徒歩33分
東武小泉線 小泉町 徒歩56分 東武小泉線 東小泉 徒歩64分 |
||||
| 特徴 |
|
|---|---|
| セールスコメント | 【POINT】 ○ララハウス×アイ工務店 ○充実のプランが詰まったプラン◎ ○3.5帖のランドリールーム! カウンターもあるためお着替えや スキンケア用品などもしっかりと収納できます◎ ○玄関には土間収納があり ベビーカーなども収納可能◎ ○全18邸のビッグコミュニティ! ・お子様同士が仲良くなれるため特に子育て世代にオススメです♪ ○土地代別途あり ■【0120-82-3388】へお気軽にお問い合わせください■ ■【ララハウス 太田】で検索♪ 最新情報を毎日更新中です! 弊社ホームページをご利用くださいませ☆☆ |
| 採光面 | 東南 | 構造/階数 | 木造/地上1階建 |
|---|---|---|---|
| 建ぺい率 | 60(%) | 容積率 | 200(%) |
| 駐車場 | - | 現況/引渡し | 未完成/相談 |
| 土地権利 | 所有権 | 私道負担面積 | - |
| 接道状況 | 接道: 北 4.2m 公道 | 用途地域 |
第二種中高層住居専用地域
|
| セットバック | - | 法令上の制限 | - |
| 地目 | 宅地 | 地勢 | |
| 建築確認番号 | 都市計画 | 市街化区域 | |
| 備考 |
【 アイ工務店の充実仕様 】
・Low-Eトリプルガラス・樹脂サッシ ・内外ダブル断熱・屋根断熱 ・C値 実測平均値0.32(全棟気密検査) ・UA値0.28 北海道エリアの断熱等級6 ・70年長期保証システム ・床下空気循環器”エアーミックス” ・家中まるごとウルトラファインバブル |
||
| リノベーション箇所 | リノベーション時期 | ||
| リノベーション補足 | |||
| 取引態様 | 売主 | ||
| 情報更新日 | 2026年01月23日 | 次回更新日 | 2026年02月06日 |
| 小学校区 | 大泉町立西小学校 (群馬県邑楽郡大泉町) この学区の他の物件を見る |
中学校区 | 西中学校 (群馬県邑楽郡大泉町) この学区の他の物件を見る |
|---|
| 価格 | 万円 | ||
|---|---|---|---|
| 年利率 | % |
||
| ボーナス払い | 返済年数 | ||
| 頭金 | 直接入力する | 万円 | |

毎月のご返済額 |
ボーナス(×年2回) |
物件価格3,000万円 |
![]() |
![]() |
邑楽郡大泉町寄木戸
2642万円〜3000万円 |
【アイ工務店との豪華共演!】トリプルガラスや内外ダブル断熱で寒い冬も暑い夏も快適に過ごせます◎人気の平屋建てプラン!動線が考えられた間取り!平屋建てながらトイレはもちろん2か所にご用意☆